甘肃平山湖矿区平山湖一号煤矿项目规划许可批前公示
| 索引号 | 620702078/2025-00338 | 发文字号 | |
| 关键词 | 发布机构 | 市自然资源局甘州分局 | |
| 公开形式 | 责任部门 | ||
| 生成日期 | 2025-12-15 17:10:00 | 是否有效 |
规划公示
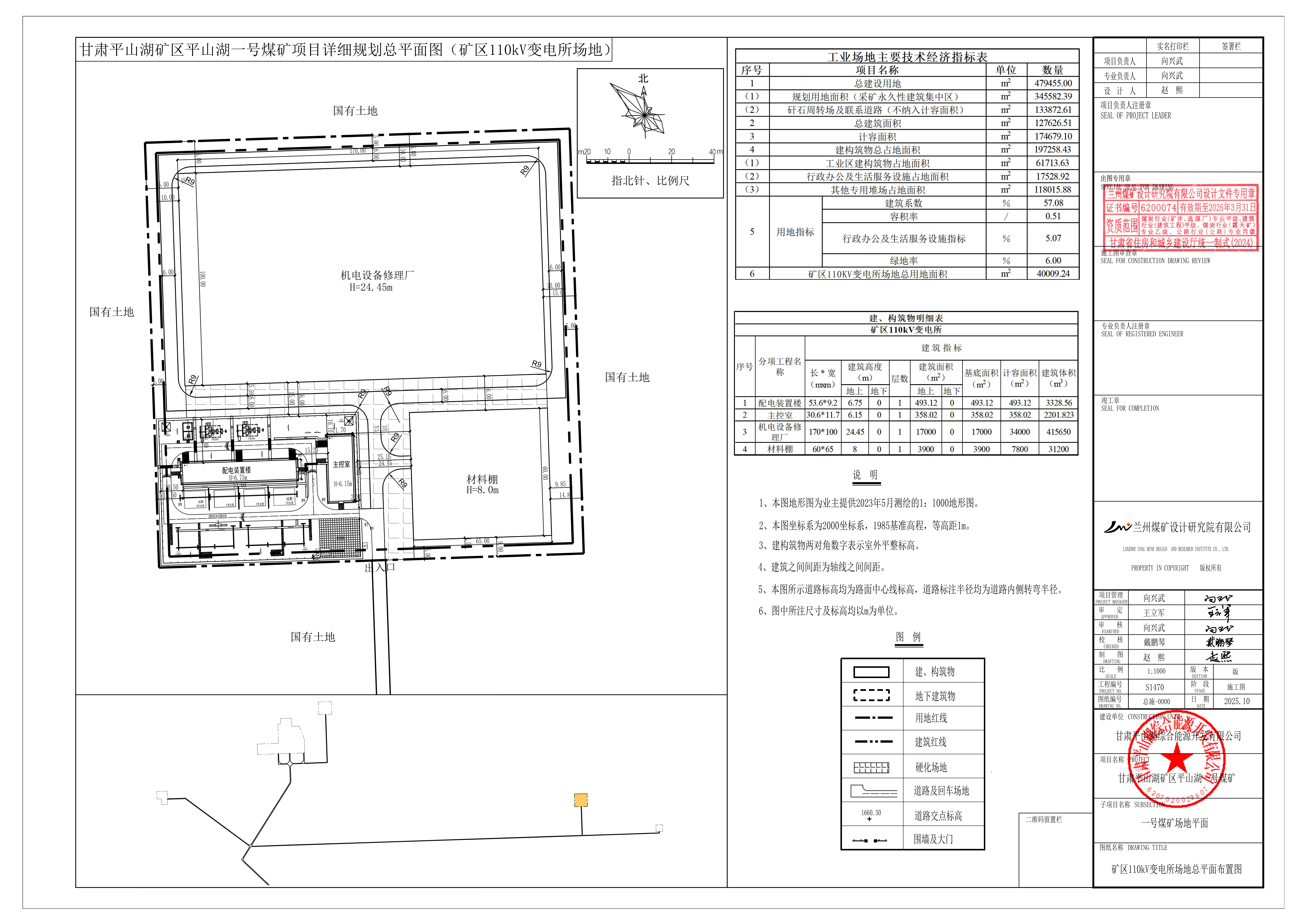
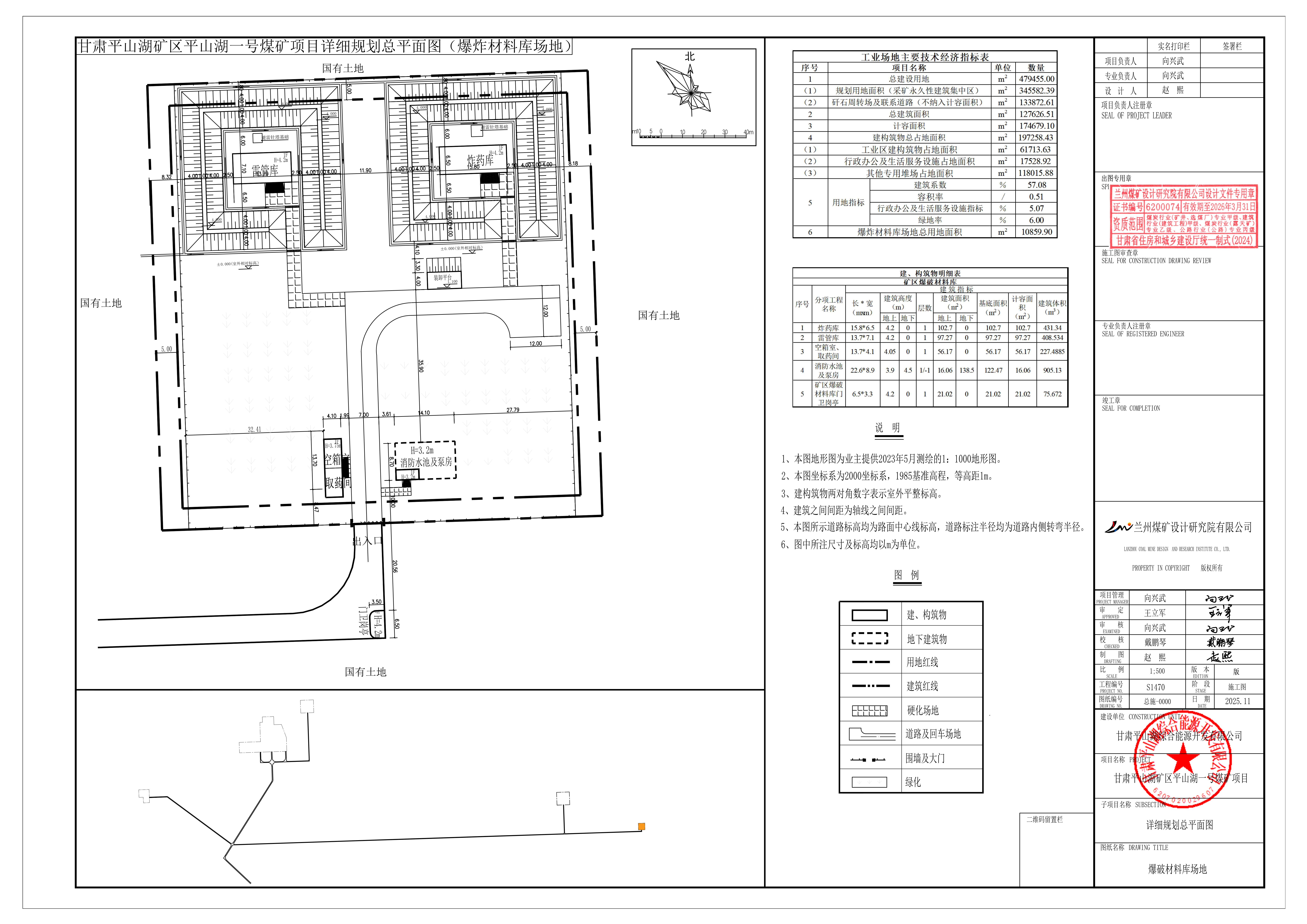
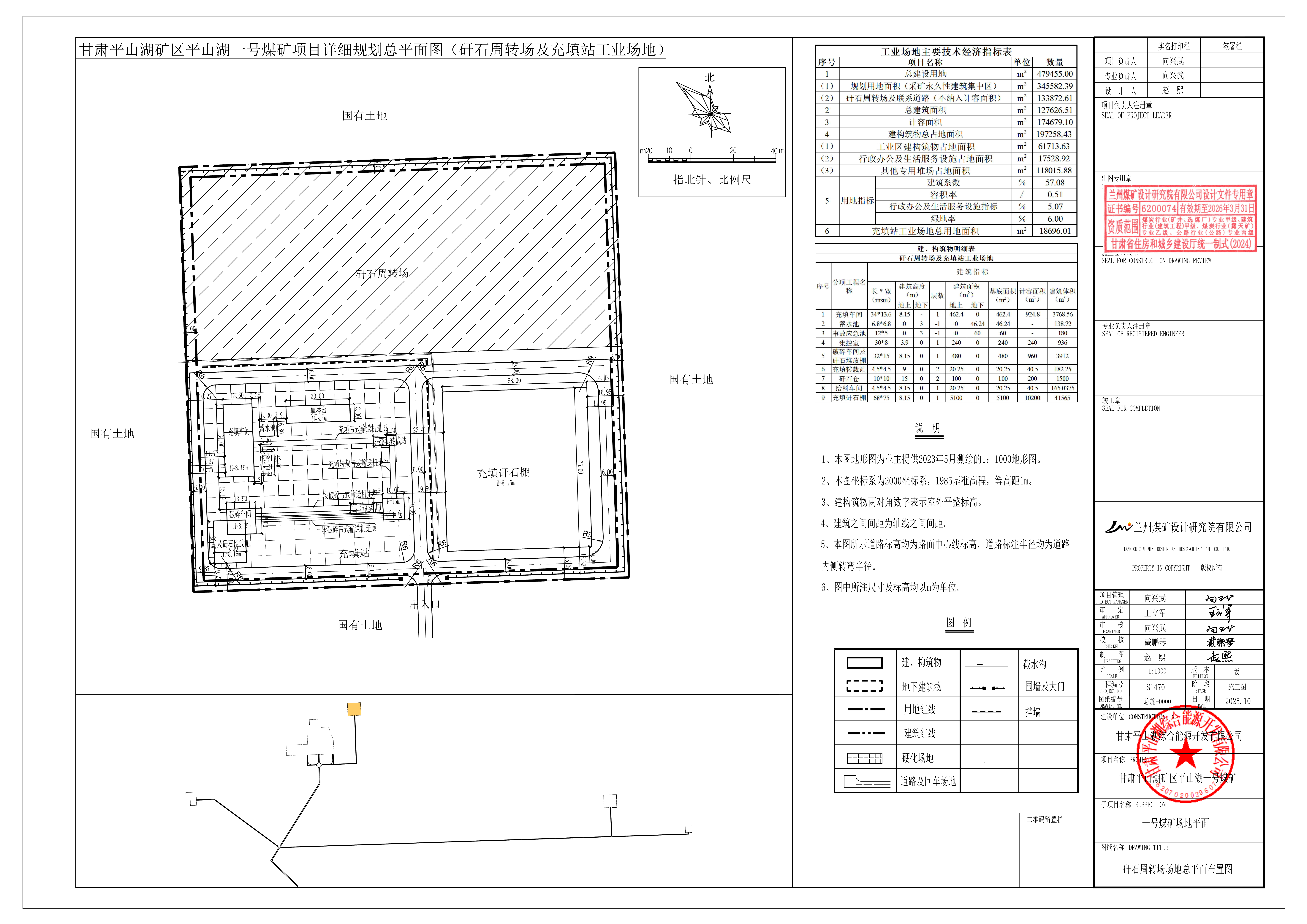
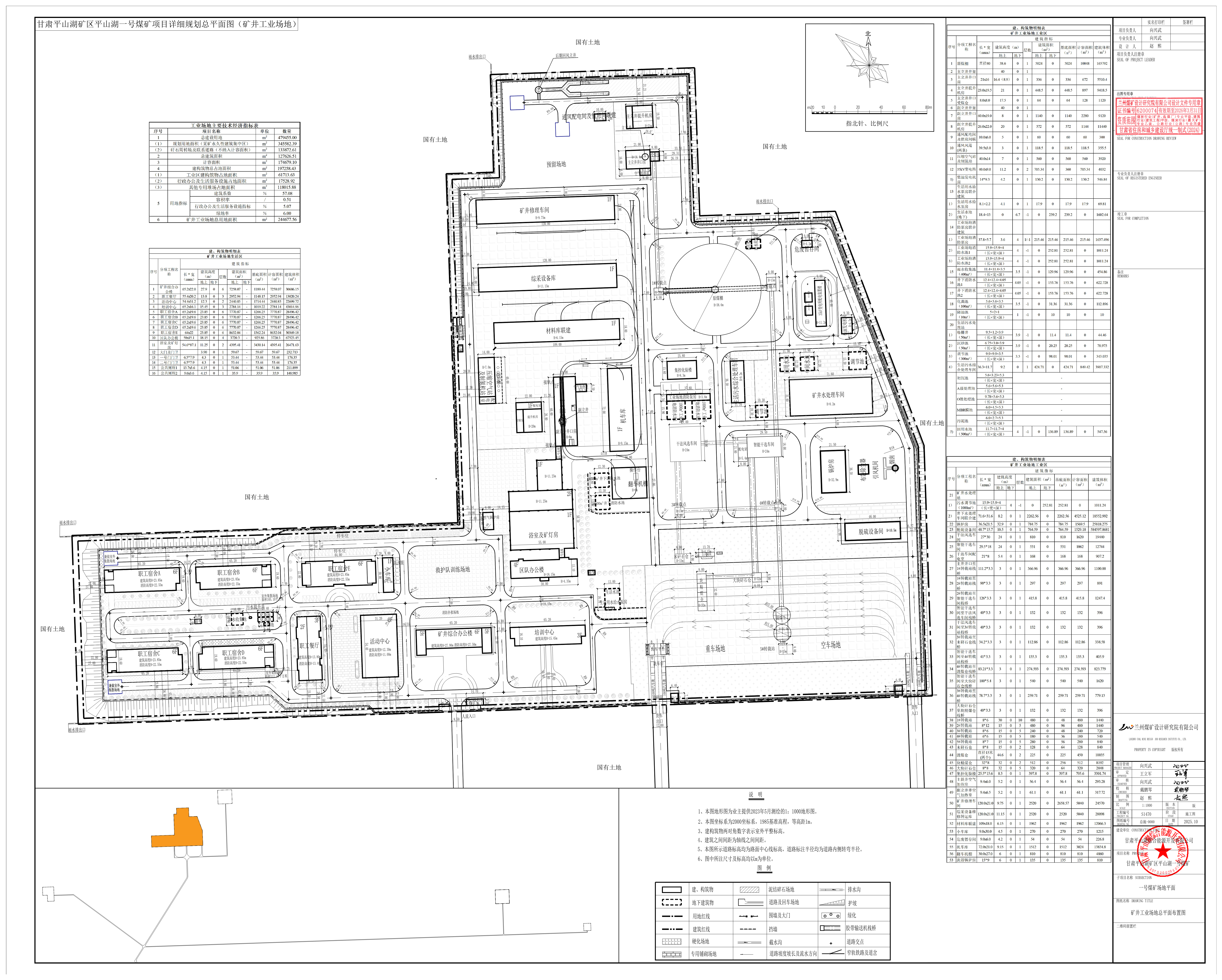
甘肃平山湖综合能源开发有限公司拟在张掖市甘州区平山湖乡建设“甘肃平山湖矿区平山湖一号煤矿项目”,并申请办理该项目《工程规划许可证》。该用地性质为采矿用地,总用地面积479455平方米,规划用地面积345582.39平方米(除矸石周转场及联系道路面积),总建筑面积127626.51平方米,综合经济技术指标:容积率0.51,建筑系数57.08%,绿地率6%。建(构)筑物之间具体规划尺寸详见该项目详细规划总平面图。
现将该项目详细规划总平面图、鸟瞰图进行规划许可批前公示。与本建设项目有重大利害关系的公民、法人以及其他组织对本拟许可事项有异议的依法享有陈述、申辩和听证等权利,请在公示期内向我局以书面、邮寄或电话形式提出。如申请听证,请于本公示发布之日起5个工作日内以书面形式提出,逾期视为放弃权利。
公示时间:2025年12月15日至2025年12月19日
地址:张掖市甘州区政务大厅4楼8号厅3号窗口
联系人:宋宝丽 蔡宗彩
联系电话:0936-8863032
张掖市自然资源局甘州分局
2025年12月15日










扫一扫在手机打开当前页面